CBR Bâtiment

(Construction Bâtiment Rénovation) Maçonnerie Générale

www.cbr-batiment.fr

R.C.S. ROUEN 499 009 280 - No de Gestion 2008 B 00846

CONTACTEZ  NOUS

Téléphone Fixe : 02 35 88 94 40

Fax                              : 09 56 87 05 45

E-mail :  contact@cbr-batiment.fr

 

 

HORAIRES

Du lundi au vendredi
9h00-12h00
14h00-18h00
Egalement le week-end sur RDV

Nos 20 années d’expérience dans le secteur du bâtiment nous permettent de réaliser tout type travaux et de répondre à toutes vos attentes concernant vos plans.

   Notre société Cbr Batiment est spécialisée dans les travaux de gros œuvre – la construction et se propose de réaliser : plans – permis de construire pour vos projets.

  • Maison traditionnelle contemporaine.
  • Bois – ossature bois ou agglos.
  • Bâtiments / locaux commerciaux.

Cbr Batiment s’engage à réaliser vos démarches administratives :

  • Réalisation de plans.
  • Réalisation d’avant projet.
  • Dépôt de permis de construire ou demande d’autorisation de travaux en mairie.

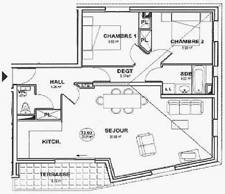
Vous souhaitez réaliser des plans ?

 

Un projet ?  

 

Comment entreprendre vos démarches ?


Procédure :

   Nous appeler à l’agence, un conseiller technico-commercial vous rendra visite afin de faire le point sur votre projet et déterminer vos besoins.

   Nous appeler à l’agence, un conseiller technico-commercial vous rendra visite afin de faire le point sur votre projet et déterminer vos besoins.


   Un second rendez vous est mis en place pour la réalisation des plans du projet.


   A l’issue de ces rendez vous de ces rendez vous : un plan – un projet (2d ou 3d) vous sera proposé, ainsi qu’un devis détaillé.


   Les travaux pourront débuter, une fois toutes les formalités accomplies : sous réserve d’acceptation des autorités administratives et sous réserve d’acceptation du devis.

 

   L’entreprise Cbr Bâtiment  réalise vos plans et vos démarches administratives sur trois départements : 76 - 14 - 27.

PLAN PERMIS PROJET

Notre équipe reste à votre disposition afin d’apporter plus de clarté, avec nos compétences et notre savoir faire.

 

contact@cbr-batiment.fr

 

Tél Fixe .: 02 35 88 94 40

Fax .: 09 56 87 05 45

Du lundi au vendredi
9h00-12h00
14h00-18h00

NOTRE DEVIS EST GRATUIT